Village house in Arta with planning permission for renovation👉 485.000 €

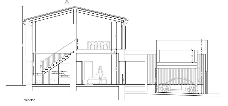
House in Arta, in a quiet area, with plans and planning permission to start work immediately. The plans also include a swimming pool and a garage. With lovely views of San Salvador.

 

Equipment

  • 223 m² built area

  • 180 m² living space

  • 13 m² porch

  • 30 m² garage

  • 3 bedrooms

  • 2 bathrooms

  • pool

Distance

•Arta

Price

  • € 485.000,-

 
 

Interested ?

Just send me an e-mail

EnglishGELDBLICK